YOUR FAVORITES: HOMES | LOTS/LAND


$899,000

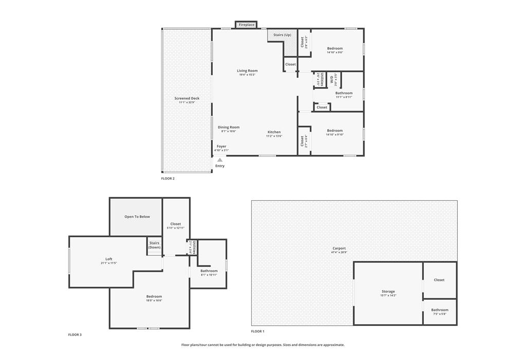
125 Canoe Ln
Port St. Joe, FL 32456
3 Beds, 3 Bath
1st Tier Gulf,Gulf MLS#: 324173
Status: Active
Office: Coastal Realty Group-CSB South

Would you like for us to contact you about this property?

We would love to do so.

Click Here to drop us a quick email with your contact information.

Attributes

Detached Single Family
2300
2000
0.484
75' x 285'
75' x 285'
Frame, HardiPlank Type
Ceiling Beamed, Ceiling Raised, Fireplace, French Door, Inside Storage, Kitchen Island, Pantry, Plantation Shutters, Smoke Detector, Walk-in Closet, Window Treatment All
Boat, Covered, Driveway, Under House With Pad
Residential Single Family
Pelican Pines

Description

Outstanding Gulf views from this recently improved 3 bedroom, 3 full bathroom first tier home in an Old Florida setting with easy beach access. This elevated home is well-appointed with an expansive screened porch facing the Gulf, an exterior cargo lift, and plenty of room for larger boat or RV covered parking under the home. The living room features high, beamed ceilings with plenty of natural light from the custom windows with plantation shutters and a fireplace. The large 75' wide property measures just under a half acre with FEMA eligibility and could support a pool and/or guest house addition on the back of the property. The ground level storage and workshop area includes a full bathroom along with a separate outdoor shower and fish cleaning station. Great location just off CR 30-A between Cape San Blas and Indian Pass, conveniently close to the charming coastal towns of Apalachicola and Port St. Joe, and right down the road from the Indian Pass Raw Bar and public boat ramp. The deeded beach access boardwalk is directly in front of the home, very short and convenient walk to the unspoiled beaches of Indian Pass and CR 30-A, and there is a public boat ramp less than 3 miles away down Indian Pass Road.

Media:
Virtual Tour



Property information provided by the REALTOR'S® Association of Franklin and Gulf Counties, Inc.. IDX information is provided exclusively for consumers' personal, non-commercial use, and may not be used for any purpose other than to identify prospective properties consumers may be interested in purchasing. This data is deemed reliable but is not guaranteed accurate by the MLS.